Huippu tontti
hyvällä sijainnilla
Tutustu tulevaan kotiisi –
varaa omasi
As A: 230 000€
As B: VARATTU
Kodin avainominaisuudet
Asuntojen erityispiirteet
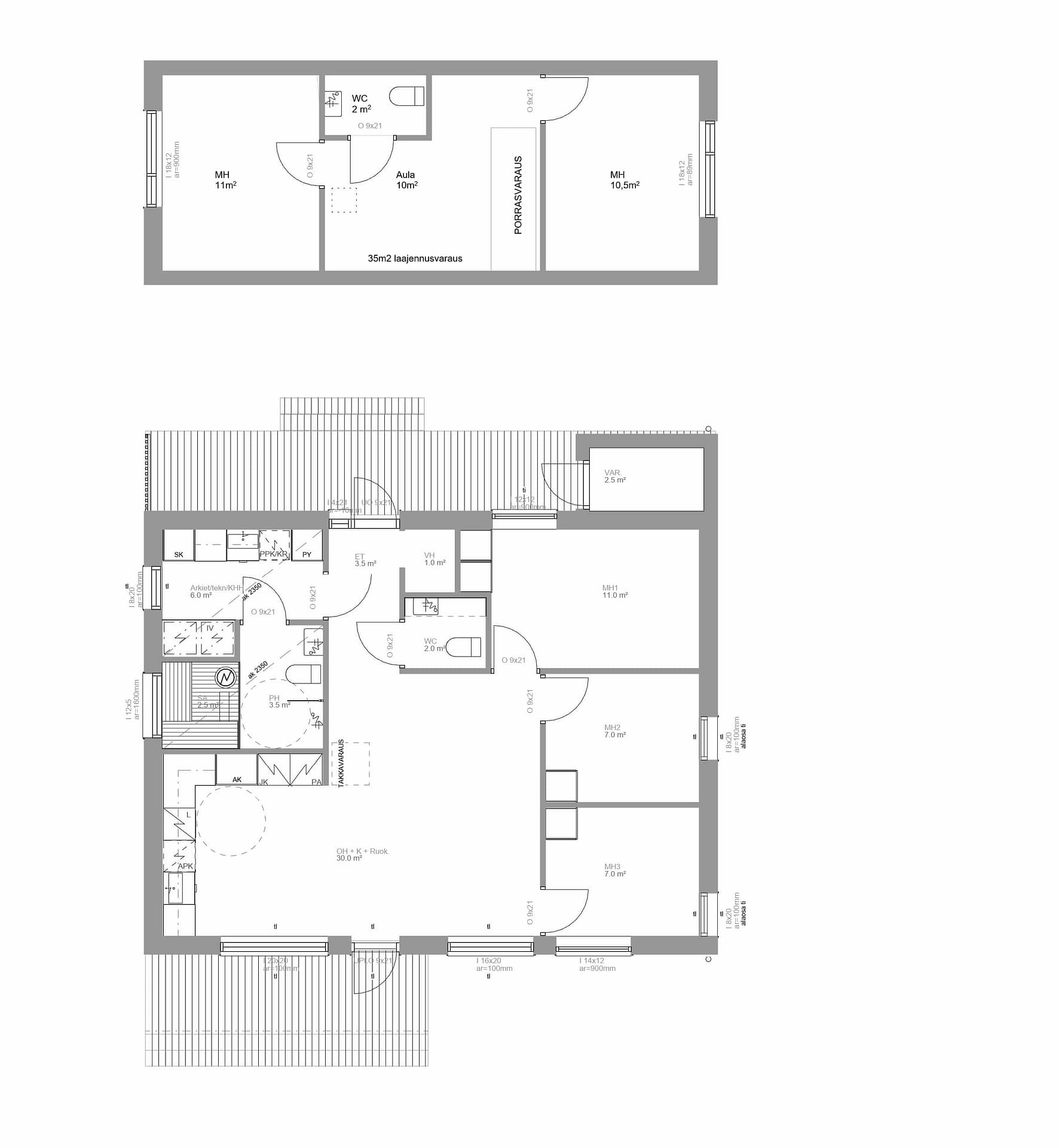
Limingan Kotirantaan rakentuvat erillistalot koostuu kahdesta erillistalosta ja saman kokoisesta tontista. Puurakenteisen kodin suunnittelussa on tehty kestäviä ja laadukkaita valintoja. Kuvittele elämää uudessa kodissasi, jossa jokainen neliö on mietitty arjen sujuvuutta silmällä pitäen. Tämä moderni ja viihtyisä erillistalokoti tarjoaa valoisat ja avarat tilat, jotka muuntuvat elämäntilanteesi mukaan.
Tontti on erityisellä alueella koska tontti rajautuu kahdelta sivulta puistokaistaan ja yhdeltä sivulta metsään. Tontti on vuokratontti.
Tämä koti on myös tulevaisuuden koti! Valitessasi yläkertapaketin, voi laajentaa taloa kun perheesi kasvaa tai tarvitset lisätilaa asumiseen, etätyöhön tai harrastuksille, voit vaivattomasti laajentaa kotiasi useammalla huoneella. Halutessasi yläkerran rakentaminen on saatavilla Valttikotien lisäpalveluna, joten saat sen kätevästi valmiiksi ja ammattitaitoisesti toteutettuna.
Kaupat toteutetaan urakkasopimusmallilla, jossa talot maksetaan maksuerissä. Näin varainsiirtovero säästetään jolloin asiakkaan rahoja säästyy. Tontille laaditaan hallinnanjakosopimus jossa kukin hallinta-alue vastaa omista kustannuksista sekä yhteiset kustannukset jaetaan tasan.
Räätälöi unelmiesi kokonaisuus
Yläkertapaketti: Valmius lisähuoneisiin! Rakennamme puolestasi tarvitsemasi lisätilan yläkertaan – vaivatonta ja ammattitaitoisesti toteutettuna, Valttikotien laadulla.
Monikäyttöinen ulkovarasto: Sano hyvästit pihan tavarakaaokselle! Ulkovarasto tarjoaa helpon ja siistin säilytysratkaisun harrastusvälineille, puutarhatyökaluille ja kausitavaroille. Lisäpalveluna mahdollista saada varasto lämpimäksi.
Tyylikäs autokatos: Suojaa autosi säältä ja helpota lumitöitä talvella. Autokatos tuo myös lisäarvoa kiinteistölle ja tekee arjesta mukavampaa.
Viehättävä katettu terassi: Pidennä kesäkautta ja nauti ulkoilmasta säästä riippumatta! Katettu terassi luo viihtyisän oleskelutilan, jossa voit grillailla tai rentoutua perheen ja ystävien kanssa.
Vaivaton pihan valmistelu (mm. nurmikko ja istutukset): Muuta vaivattomasti valmiiseen pihaan! Voit jättää pihan perustyöt ja nurmikon kylvön meidän huoleksemme, ja nautit valmiista ulkoalueista heti muuton jälkeen.
Siisti pihatien pinnoitus: Viimeistele pihatiesi ilme valmiilla ja kestävällä pinnoituksella. Estää lietteen kulkeutumisen sisään ja lisää viihtyisyyttä.
Kysy lisävarustepaketeistamme ja anna meidän auttaa sinua rakentamaan juuri sinun näköisesi unelmien koti!
Kartta
Alueen esittely
Tontti on erityisellä alueella koska tontti rajautuu kahdelta sivulta puistokaistaan ja yhdeltä sivulta metsään. Tutustu kaavaan
Kotiranta on omakotiasumisen unelmakohde keskellä kauneinta maaseutua, mutta samalla aivan Limingan keskustan palveluiden äärellä. Kotiranta tarjoaa omakotiasujalle erinomaiset tontit, joista pääsee suoraan luontopoluille ja liikkumaan.
Kotiranta sijaitsee Limingan keskustan kupeessa erinomaisten liikenneyhteyksien varrella, kahdenkymmenen minuutin ajomatkan päässä Oulusta. Kaikki mitä tarvitsen helppoon arkeen aivan käden ulottuvilla: kaupat, kirjasto, terveyskeskus, koulut ja päiväkodit. Lähialueella on tarjolla monipuoliset harrastusmahdollisuudet jotka löytyvät kävely-, tai pyöräilymatkan päästä.

